Luxury Showroom | Bronze, Wood & Glass Detailing in a Historic SoHo Setting
Design • Fabrication • Installation
GIRALDO AEC SOLUTIONS collaborated on the creation of this luxury retail environment in the heart of SoHo, housed in a historic cast-iron building with soaring 25-foot ceilings, original wood flooring, exposed brick, and ornate columns.
Our work focused on delivering bespoke architectural elements that honor the character of the space while elevating its modern luxury. The scope included:
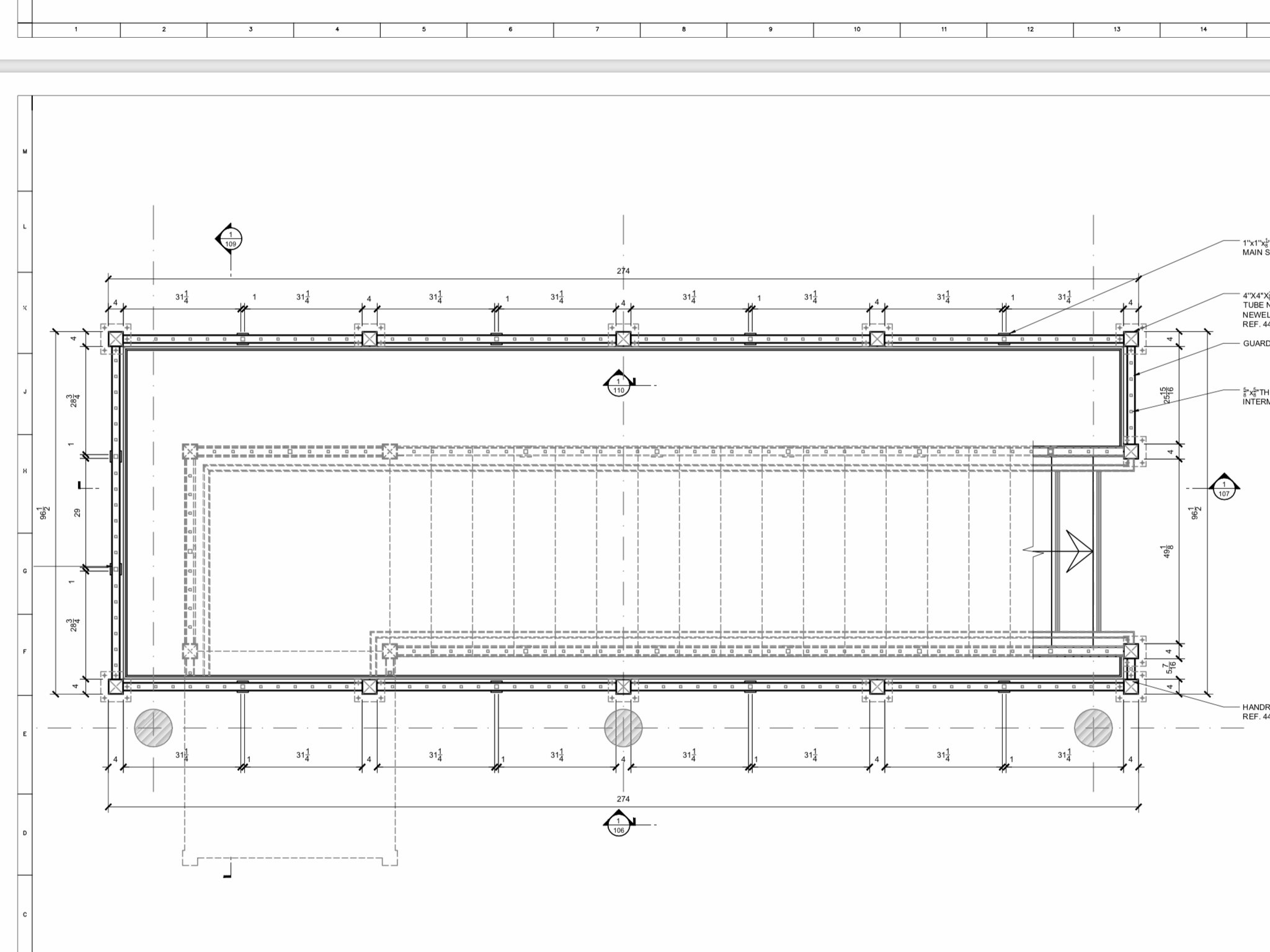
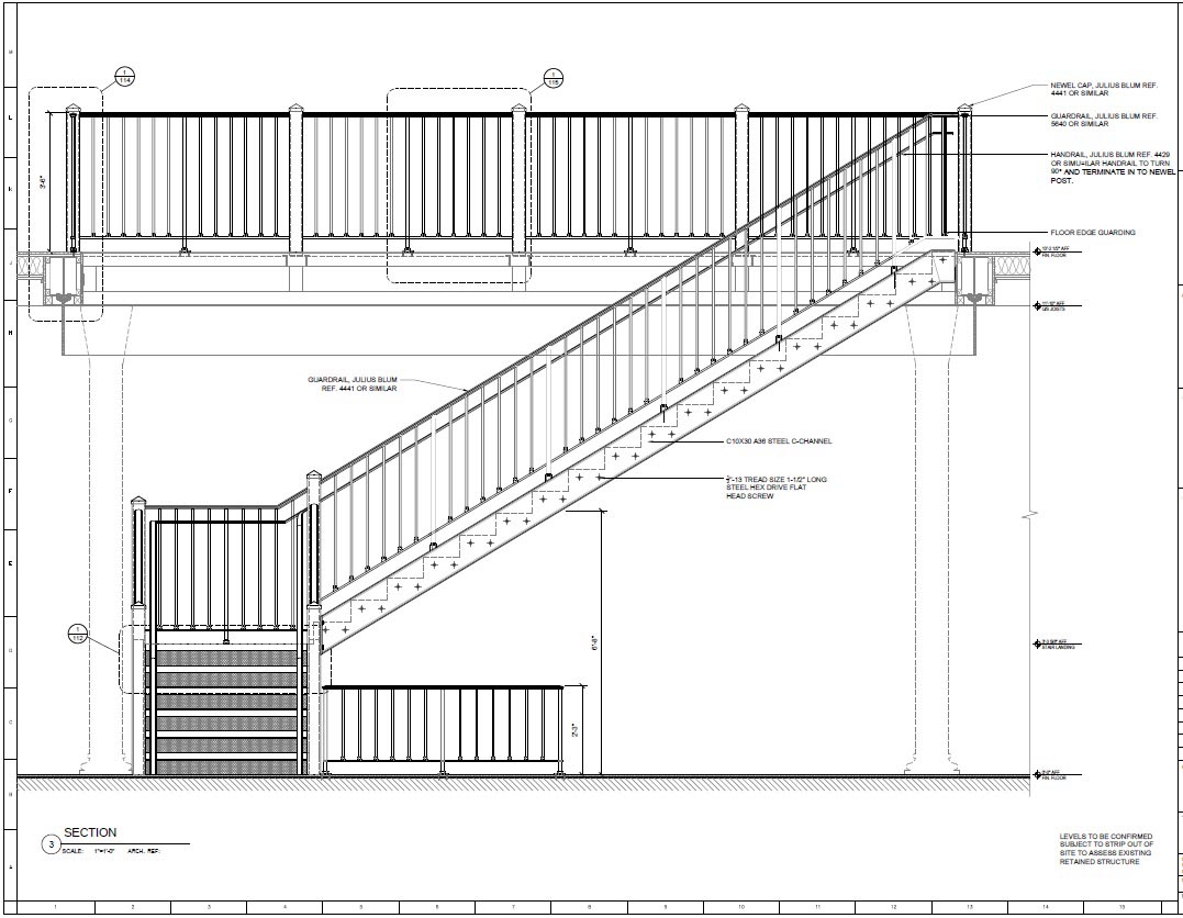
- Custom metal staircases with intricate detailing
- Bronze and glass decorative elements throughout the showroom
- Steel and glass partitions between high-end brand displays
- Metal and glass windows integrating seamlessly into the existing structure
A key challenge was the material selection—matching the showroom’s original architecture while introducing unique finishes in metal, wood, and glass that met both aesthetic and technical requirements.
The result is a refined, immersive retail space that blends heritage and craftsmanship with contemporary design