112 W 25th Street – New York City

A hospitality project featuring a sculptural floating staircase crafted in wood, metal, and glass.

Hospitality Project | Floating Staircase in Wood, Metal & Glass

Design • Engineering • Fabrication & Installation

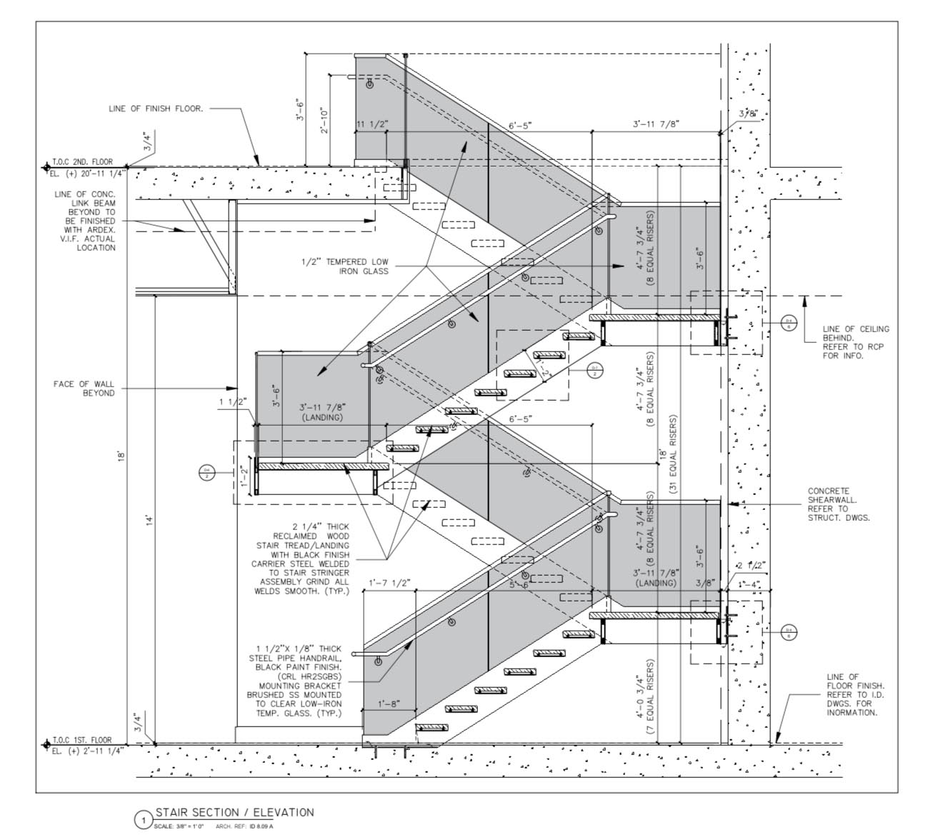
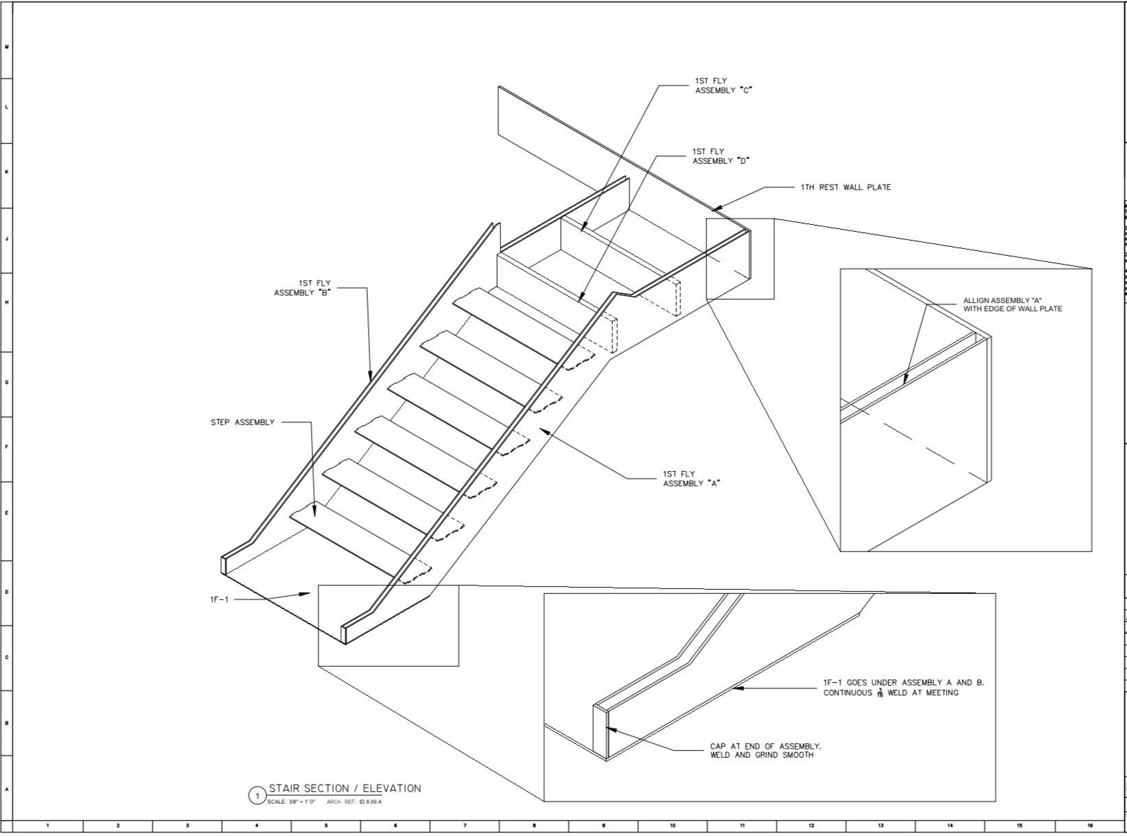
GIRALDO designed and executed a sculptural floating staircase that became the architectural centerpiece of this hospitality project in Manhattan. Located in the hotel’s main lobby, the staircase blends wood, metal, and glass in a seamless structure that exemplifies both engineering precision and aesthetic balance.

Our team led the full technical design, structural detailing, and fabrication process, including advanced robotic laser cutting to achieve exact tolerances for each component.

The floating nature of the stair posed a major engineering challenge, requiring close collaboration across disciplines and exceptional attention to detail from concept to installation.
We also contributed to other key architectural features throughout the hotel involving the same palette of materials.

architect:
Giraldo AEC
project type:
Hospitality / Boutique Hotel
LOCATION:
New York City
Role:
Technical Design Lead – Metal, Wood & Glass Structures
Client:
Hotel Project (Confidential)
A hospitality project distinguished by its sculptural floating staircase. I led the technical design and supervised fabrication and installation, integrating wood, metal, and glass into a structural artwork of remarkable detail.