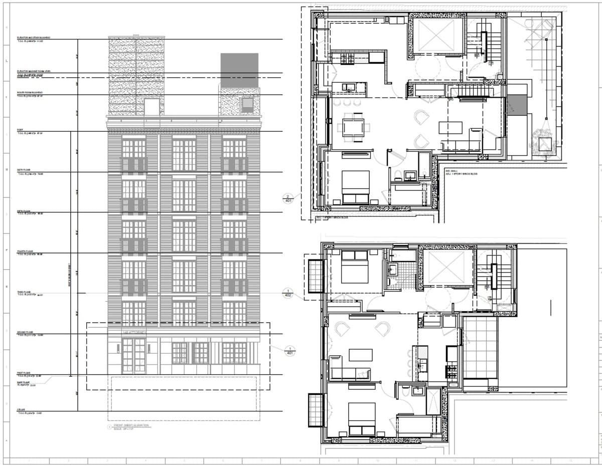
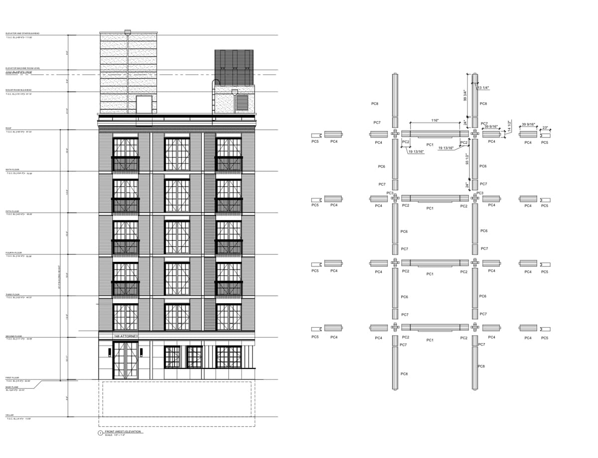
148 Attorney Street – New York City

Contemporary façade design combining brick and custom metalwork.

Modern Facade | Brick + Metal Integration

Design • Fabrication • Installation

We delivered the complete execution of this modern facade in the Lower East Side of Manhattan, featuring a refined blend of brick and metal systems.
Our scope included the design detailing, technical coordination, and hands-on fabrication and installation of the envelope elements.

We oversaw every stage of the process—from shop drawings, samples, and submittals to subcontractor management and site execution—ensuring seamless integration with the project schedule and design intent.

architect:
Giraldo AEC
project type:
Commercial / Mixed-Use Building
LOCATION:
New York City
Role:
Design & Construction Oversight
Client:
---------
A modern residential building combining brick and metal in its façade, reflecting New York’s industrial aesthetic. I managed all stages of the project, from design and detailing to fabrication and installation, ensuring precision and quality.