Jacob & Co – 48 East 57th Street, New York City

Retail and corporate space where design and engineering meet through refined architectural detail.

Retail & Corporate Flagship | Architectural Innovation in Glass, Stone & Metal

Design • Fabrication • Installation

GIRALDO delivered comprehensive architectural systems for the Jacob & Co flagship building—a 4,000 square foot retail and corporate space where high-end design and engineering converge with precision and elegance.

The centerpiece of this project is a floating glass and metal façade, designed exclusively for this building. Technically complex and visually striking, it stands among the most contemporary retail façades in New York City.

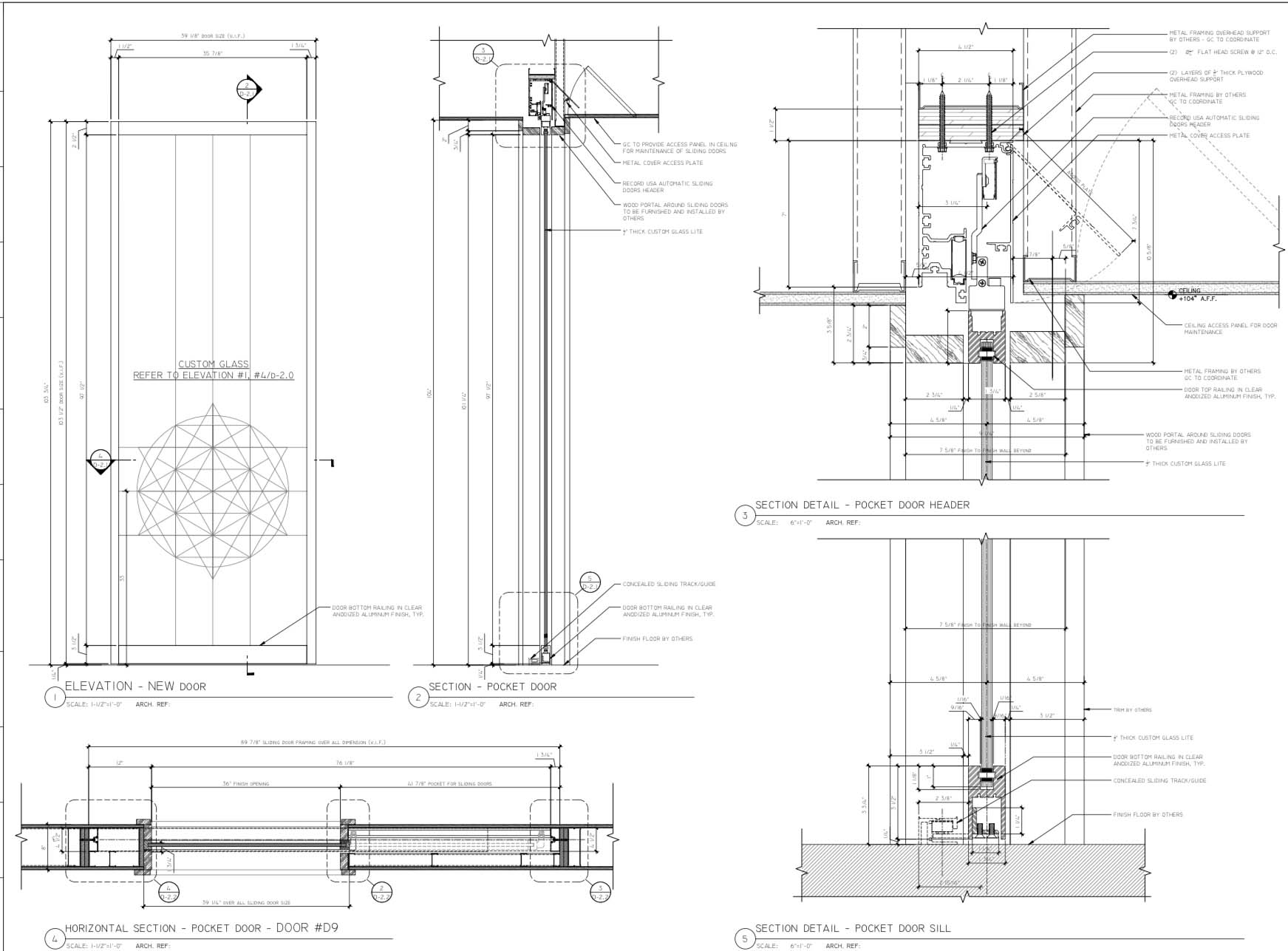
Our scope included full technical development—from design detailing, samples and submittals, to fabrication and installation—across both exterior and interior architectural features:

  • Custom façade with structural reinforcement
  • Interior decorative glass walls and flooring
  • Transparent tempered glass walkway exposing bedrock
  • Automatic door systems
  • Custom lighting integration
  • Stone, metal, and glass component fabrication
This project exemplifies the fusion of architecture, engineering, and artistic expression—executed with the highest level of technical sophistication.
A high-end retail and corporate space recognized for its floating façade and unique engineering details. I directed the translation of architectural concepts into technical solutions that merge art, structure, and precision craftsmanship.